· 線板、金屬型塑古典風,28坪的家開闊舒適
新古典現代
風格
新成屋
屋況
29坪
坪數
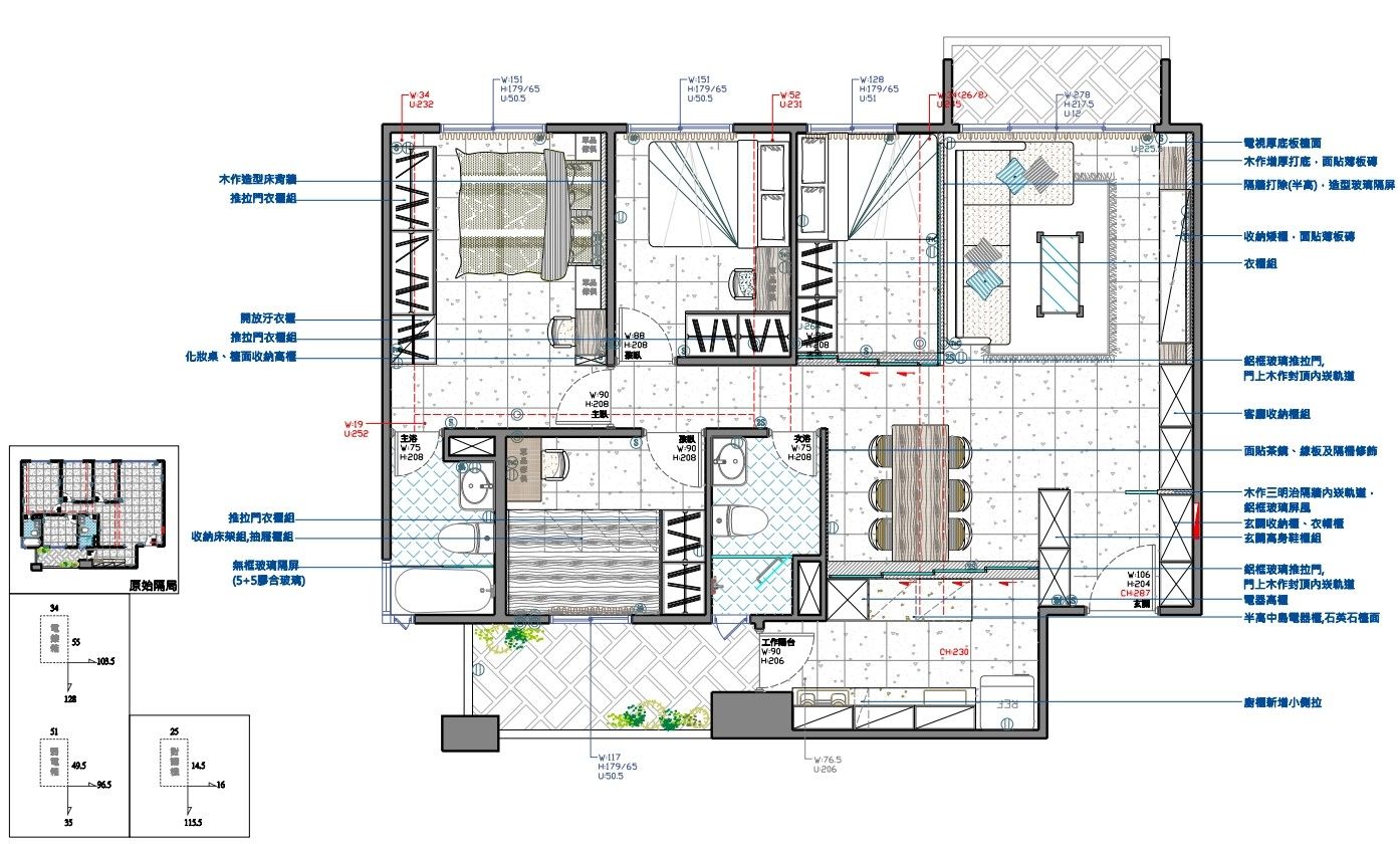
3房2廳2衛2陽台
格局

上方設計
設計師馬依彤 從業8年
費用分佈
| 明細 | 費用金額 |
|---|---|
| 設計費 | 7萬 |
| 施工費 | 145萬(拆除水土修補5.35+水電11.65+木作42+油漆9+系統櫃77.8) |
設計方案


屋主訴求
設計思路

服務範圍
| 服務 | 說明 |
|---|---|
| 丈量服務 | 免費 |
| 提案服務 | 免費 1套平面方案 |
| 基礎工程 | 部分拆除:分間牆 全屋保護:全屋塑膠瓦楞板+防護用夾板 水電工程:新增配電、迴路、燈具 木作工程:電視牆、隔間牆、管線修飾修樑、天花板造型及平釘 油漆工程:木作部分刷漆處理、局部塗料 系統櫃:全室收納櫃 |
| 裝修保固 | 保固1年(系統板6年,其他保固1年) 非人為 |
*服務範圍屬定製化服務,以設計師和業主洽談方案為準
施工過程
