一鍵同款設計
格局實景圖
施工實景圖
客廳(5)
餐廳(3)
臥室(4)
衣帽間(4)
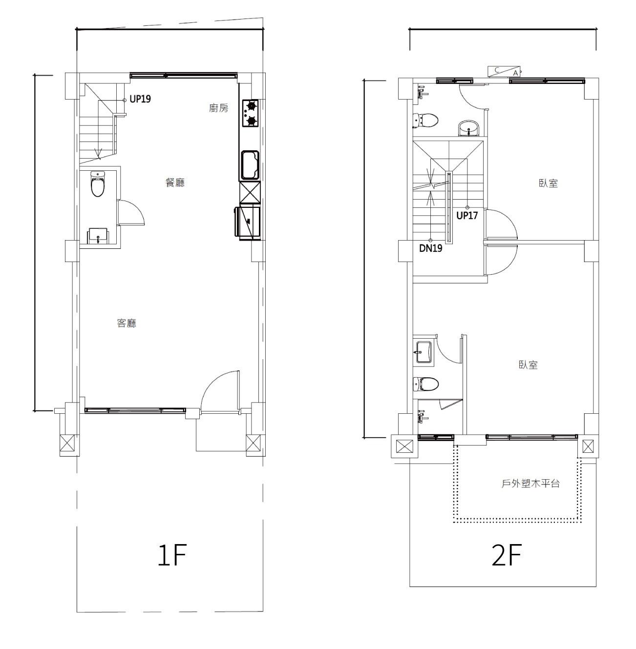
平面設計圖(2)
保護工程(1)
基礎拆除(1)
木作工程(1)
系統工程(1)
油漆工程(1)
清潔工程(1)
居然空間設計
添加LINE
追蹤IG
追蹤FB
縵里余余
台中市
現代風
茶鏡
格柵
玻璃拉門
長虹玻璃
新成屋設計
新成屋
一鍵同款設計
以俐落語彙,鋪陳可成長的日常
新成屋
屋況
25坪
坪數
2房2廳2衛1陽台
格局
成員
2大人
費用分佈
總費用 218萬
單坪8.7萬
我家裝修報價
明細
費用金額
設計費
請洽詢設計公司
施工費
請洽詢設計公司
設計方案
Before
After
屋主訴求
● 夫妻兩人居住,規劃未來育兒需求,空間需具備彈性與成長性 ● 整體風格以現代奢華為主,避免木質色調,重視俐落質感 ● 公私領域動線清楚,維持開放通透但具備必要區隔 ● 掃地機器人、吸塵器、空氣清淨機需預留專屬收納與動線
設計思路
● 公領域多處石紋材質,實現心中現代奢華風 ● 客餐廳以金屬框玻璃拉門,保留通透採光並阻隔油煙 ● 主臥床頭牆面設計結合弧形天花修飾樑線 ● 設置獨立更衣間,以玻璃拉門保留採光並界定空間
空間效果
測一測我適合哪種風格?
#石紋電視牆 #系統收納櫃 #茶鏡 1.視牆以大面石紋材質搭配下方收納櫃,延伸牆面尺度並整合機能 2.電視牆立面透過材質分割與比例配置,維持整體簡潔俐落的視覺效果 3.沙發背牆延續石紋元素,結合格柵線條與茶鏡配置,豐富空間層次
#中島設計 #玻璃拉門 #餐廳收納 1.餐廚以中島作為核心,串聯料理、用餐與交流動線 2.金屬框玻璃拉門界定廚房範圍,保留通透採光並阻隔油煙 3.中島結合收納與備餐機能,搭配餐桌配置,滿足日常與聚會使用
#弧形天花 #系統衣櫃 #格柵設計 1.入口以格柵與收納櫃錯落配置,弱化進門視線,保留私領域隱私 2.床頭牆結合弧形天花修飾樑線,使睡眠區視覺更柔和放鬆 3.客製衣櫃整合收納與展示,搭配開放層板,提升使用便利性
#更衣室規劃 #玻璃拉門 #系統衣櫃 1.以鋁框玻璃拉門界定空間,保留採光同時維持更衣區獨立性 2.系統衣櫃依使用習慣分區配置,整合吊掛、抽屜與收納層板 3.深色櫃體搭配鋁框玻璃門片,減輕量體感,營造沉穩而不壓迫的氛圍
服務範圍
服務
說明
丈量服務
免費
提案服務
免費
基礎工程
部分拆除:隔牆拆除 全屋保護:廚具與門框 水電工程:燈具、插座 木作工程:天花、木格柵 油漆工程:全室油漆 系統工程:全室櫃體
監工服務
免費
裝修保固
保固1年
*服務範圍屬定製化服務,以設計師和業主洽談方案為準
施工過程
保護工程
全屋保護:廚具與門框
基礎拆除
部分拆除:隔牆拆除
木作工程
木作工程:天花、木格柵
系統工程
系統工程:全室櫃體
油漆工程
油漆工程:全室油漆
清潔工程
清潔工程:全室粗細清
相關作品推薦
同公司
同風格·現代風
同預算 · 218萬