套用這個風格
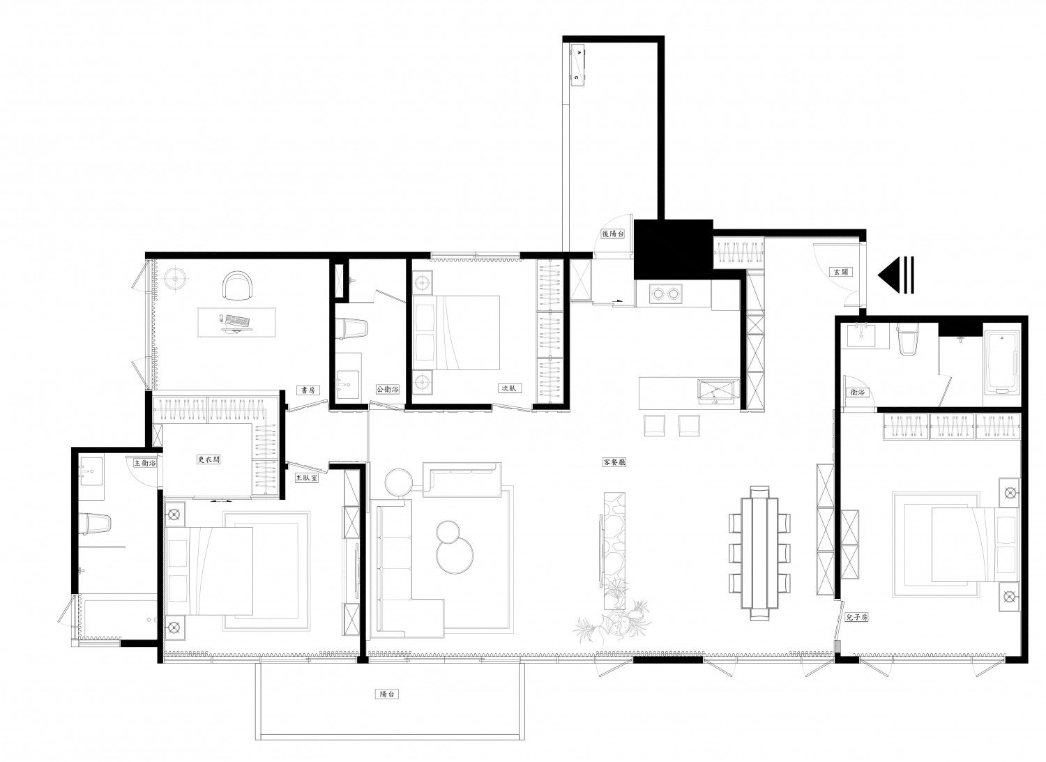
格局實景圖
AI環景(1)
餐廳(5)
其他(9)
廚房(3)
客廳(12)
臥室(6)
晨陽設計|謙鐿設計|晨陽共好機構
添加LINE
追蹤FB
昭陽縱橫 | 舞‧墨
301-400萬
預算
其他
風格
毛胚屋
屋況
65坪
坪數
5房
格局
套用這個風格
空間效果
測一測我適合哪種風格?
相關作品推薦
同公司
同風格·其他
同預算 · 301-400萬