設計師陳佳儒從業11年中國科技大學 室內設計系碩士班
12坪爆紅海景小宅|三年後回訪的智慧收納
美式風
風格
新成屋
屋況
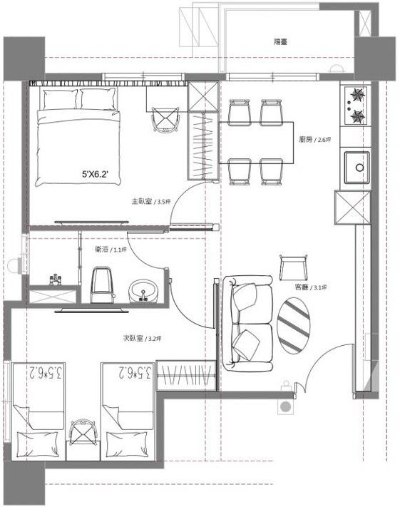
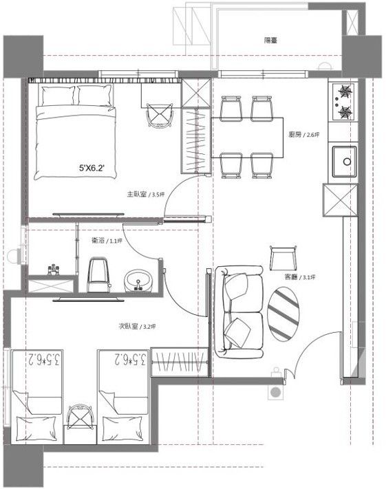
12坪
坪數
2房2廳1衛
格局
費用分佈
| 明細 | 費用金額 |
|---|---|
| 設計費 | 請洽設計公司 |
| 施工費 | 請洽設計公司 |
| 其他 | 11萬(全室的家具跟家電) |
設計方案


屋主訴求
設計思路


服務範圍
| 服務 | 說明 |
|---|---|
| 丈量服務 | 免費 |
| 基礎工程 | 1.天花與高度規劃:統一250公分,搭配頂天立地櫃體與門片,消弭補板縫隙。 2.空調與管線工程:採吊隱式冷氣,管線集中於天花並預留維修孔。 3.電力與弱電整合:電箱以櫃體整合遮蔽,設備置於開放層架利於散熱,插座配置符合實際動線。 4.照明與控制系統:重整燈具線路並導入智慧控制,保留燈具外型,窗簾盒加設間接光次。 5.門片與隔間工程:門片齊高減壓迫,玻璃隔間兼顧採光與機能,長輩房以窗簾達成彈性遮蔽。 |
| 監工服務 | 請洽詢設計公司 項目主管專人監工、每天在line群組匯報工程進展 |
| 裝修保固 | 保固1年 本工程自正式驗收之日起保固一年,於保固期內如確定係因施工不良或材質不佳而有損壞者,乙方應負修復之責,但下列情事不在此限。 (一)非一般使用情況之人為因素所议。 (二)遭原建築體及其設施所波及者。 (三)不可抗力之原因導致之損壞。 |
*服務範圍屬定製化服務,以設計師和業主洽談方案為準

作品開箱

人生第一次發包裝潢,50萬也能擁有設計過的12坪海景美宅
2021-02-05